Sanierung Jugendstilhaus

 

Das Wohnhaus aus 1902 wurde erstmalig teilsaniert. Außenwandabdichtung, Injektion und Einbau Drainage sowie Fassadenreparaturen am verputzten Mauerwerk für Verbesserung der Dämmwerte und Trockenlegung der feuchten Kelleretage.

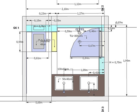
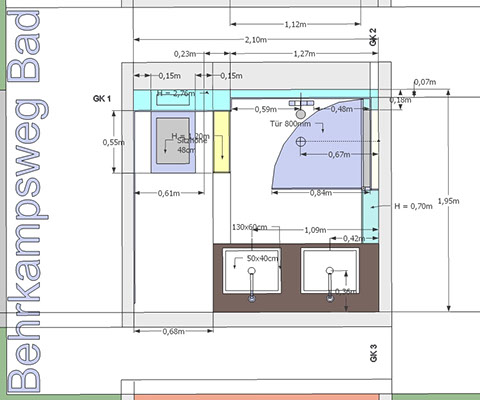
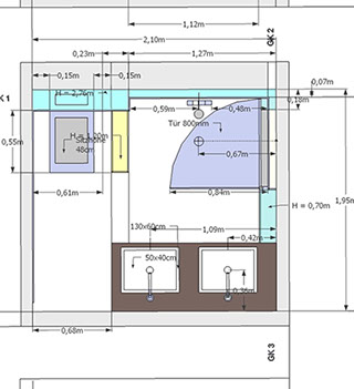
Das komplette OG + DG wurde neu definiert und mit neuen Böden, Wandfarben, Sanitärräumen und einer neuen Küche, Umbau einiger Fenster sowie den Ausbau DG zum Dachstudio.

Besuchen Sie uns auch auf ig-cube.de, die intelligente Gartentrennwand für Terrasse und Balkon