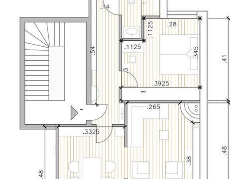
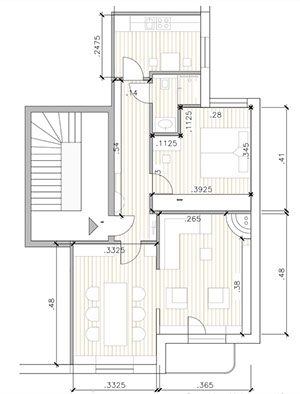
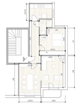
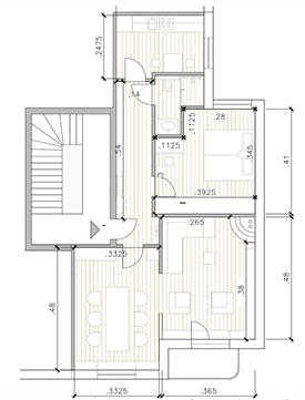
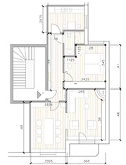
Sanierung Jugendstilwohnung OG 2, Hamburg

 

Eine 73m² Wohnung wurde grundlegend saniert. Neben Grundrissänderungen wurde eine neue Lichtplanung umgesetzt.

>

<

Besuchen Sie uns auch auf ig-cube.de, die intelligente Gartentrennwand für Terrasse und Balkon