Umbau Landhaus

 

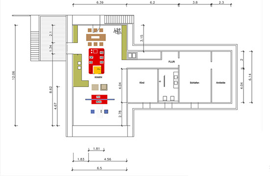
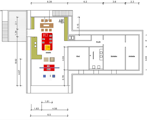
Das Landhaus bei Bremen soll geschossweise in zwei Wohneinheiten geteilt und umgebaut werden.

Eine zusätzliche Erschließung für das OG wird über die bestehende Garage geführt. Hier wird der zentrale Wohnbereich mit Essplatz, Couchecke,  Kamin und  einer offenen Küche neu definiert.

>

<

Besuchen Sie uns auch auf ig-cube.de, die intelligente Gartentrennwand für Terrasse und Balkon