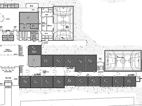
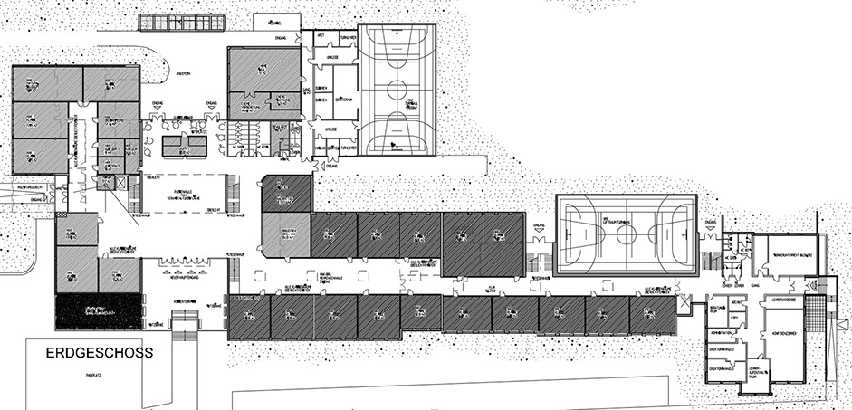
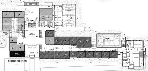
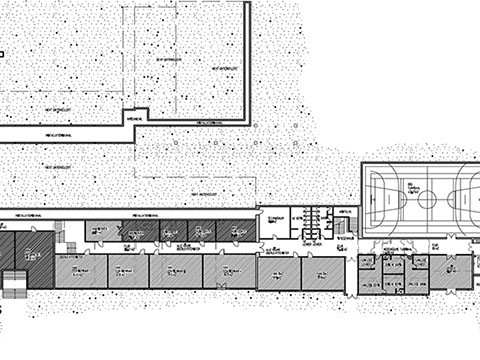
Umbau der Berufsschule in Feldkirchen

 

Aufgabenstellung

Aus zwei angrenzenden Schulen soll ein zusammenhängender Gesamtkomplex geschaffen werden. Die Aula ist möglichst zu verbessern und den neuen Bedürfnissen anzupassen.

Besuchen Sie uns auch auf ig-cube.de, die intelligente Gartentrennwand für Terrasse und Balkon